Greenwood Road, E8

2 bedroom Ground floor flat Under Offer

£775,000

  • 2 bedroom
  • 1 bathroom
  • 1 reception

Key Features

  • Fantastic Location
  • Impressive High Ceilings
  • Extensive Storage
  • Glorious Private Garden
  • No Forward Chain
  • Outstanding Schools

Description

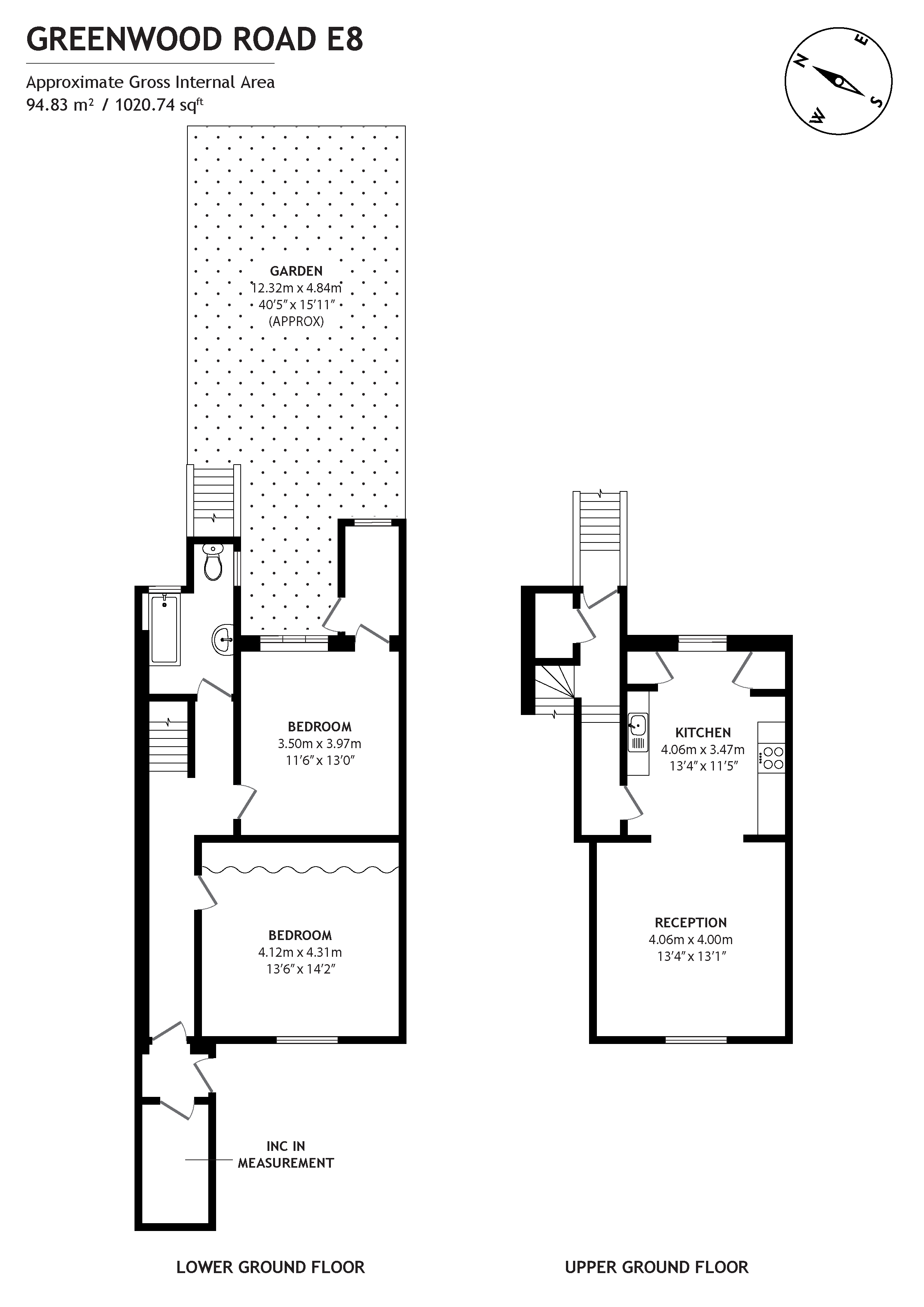
Enviably appointed in this tree-lined residential street, is this wonderfully bright duplex garden flat, forming part of this enchanting four-storey Victorian terrace. Retaining some charming classic features including sash windows and exposed wooden flooring. Composed of its own private entrance, an inviting reception hall, two large double bedrooms and a bathroom on the lower level and on the upper level is a huge living/entertaining space leading to a fitted kitchen/diner. Enjoying a tranquil easterly facing mature private garden. Close to vibrant Wilton Way, Broadway market, the refreshing green spaces of London Fields and transport links include Hackney Downs and Dalston Junction Stations. No forward chain.


Location


Floorplan

Floorplan

EPC

EPC for Greenwood Road, E8

London Estate Agent

Jupiter House, Solar System Lane, JP12 3AB

Similar Properties

Mapledene Estate, E8
Under Offer

Mapledene Estate, E8

2 Bed Flat Under Offer
Guide price £500,000
Shrubland Road, E8
Under Offer

Shrubland Road, E8

1 Bed Flat Under Offer
Guide price £585,000
Ward Hall Court, E8
Under Offer

Ward Hall Court, E8

2 Bed Ground floor flat Under Offer
Guide price £870,000